Get new listings emailed daily! JOIN SIGN IN
Scott Mathews
REALTOR®
(843) 222-7082
Facebook Icon YouTube Icon Instagram Icon Realtor.com Icon Zillow Icon Twitter Icon VCard Icon 

54 Bennington Ct, Georgetown, SC 29440

$309,204
  • 54 Bennington Ct, Georgetown, SC 29440 Main Photo

13 Total Photos [Click to View All]

New to the Market Active
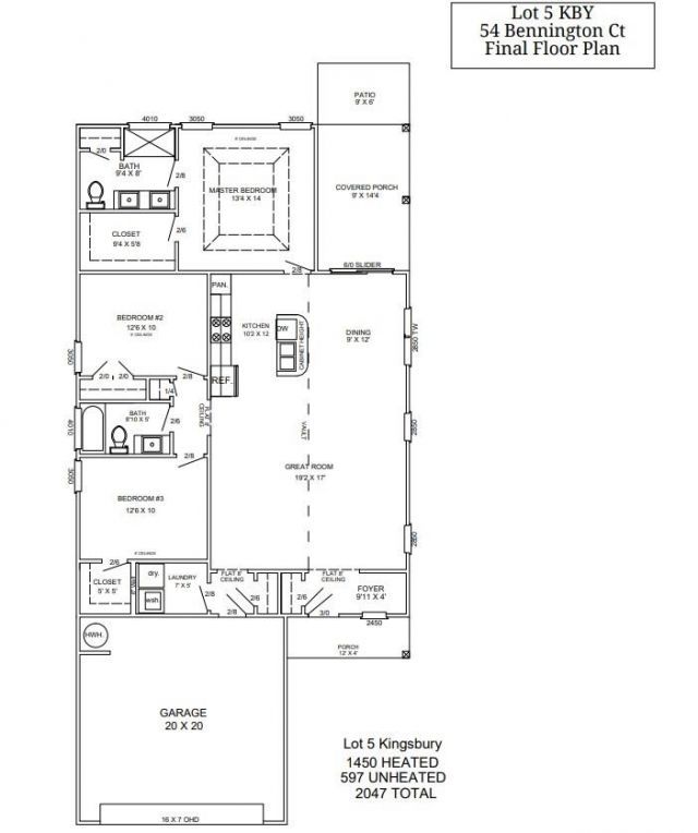
BEDS3 BATHS2 full SQUARE FEET1,450 MLS#2610673
STATUSActive PROPERTY TYPEResidential - Single Family SUBDIVISIONKingsbury

Property Description

Home is under construction, to be completed by July - This beautiful Custom floor plan offers 3 bedrooms and 2 full baths. This floor plan is very open with lots of natural light. Stainless appliances, granite breakfast bar and counters combine to give you the wow factor youre looking for. The glass door in the dining room leads to a large covered rear porch and additional patio, with a fully-sodded backyard and pond view. Building lifestyles for over 40 years, we remain the premier home builder along the Grand Strand. Were proud to be the 2021, 2022, 2023, and 2024 winners of both WMBF News and The Sun News Best Home Builder awards, and the 2025 winner of The Sun News Best Home Builder. 2023, 2024, 2025, & 2026 winners of the Myrtle Beach Heralds Best Residential Real Estate Developer award, and 2024 & 2025 winners of The Horry Independents Best Residential Real Estate Developer and Best New Home Builder award. We began and remain in the Grand Strand, and we want you to experience the local pride we build today and every day in Horry and Georgetown Counties. All of the homes in Kingsbury come standard with Ion Gray Smart Thermostats. Painted and trimmed 2-car garage featuring a steel-reinforced garage door with LiftMaster?? 3/4 HP chain-drive opener, built-in camera, and MyQ® Wi-Fi connectivity for mobile operation, and floored attic storage space accessed by drop-down stairs.

54 Bennington Ct | MLS# 2610673

This single family home located at 54 Bennington Ct, Georgetown, SC 29440 is currently listed for sale with an asking price of $309,204. This property was built in 2026 and has 3 bedrooms and 2 full baths with 1450 sq. ft. Bennington Ct is located in the Kingsbury subdivision. Search Kingsbury real estate on scott.century21thomas.com today.

Property Features

Property Type: Residential - Single Family
Cooling: Central Air
Garage: 2 car attached
Heating: Central, Electric
Home Style: Ranch
Lot Size: 0.31 Acres
Stories: 1.0
Year Built: 2026

Amenities

Tray Ceiling(s)
Ceiling Fan(s)
Linen Closet
Main Level Primary
Split Bedrooms
Separate Shower
Vanity
Walk-In Closet(s)
Breakfast Bar
Bedroom on Main Level
Entrance Foyer
Kitchen Island
Stainless Steel Appliances
Solid Surface Counters
Porch
Patio

Feature Descriptions

Appliances: Dishwasher, Disposal, Microwave, Range
Association Amenities: Owner Allowed Golf Cart, Owner Allowed Motorcycle, Pet Restrictions
Community Features: Golf Carts OK
Days on Site: 4
Door Features: Insulated Doors
Exterior: Vinyl Siding
HOA: Yes
HOA Fee: 55/ Monthly
Laundry: Washer Hookup
Lot: Rectangular, Rectangular Lot
Parcel#: 02-0211-054-05-05
Parking: Attached, Garage, Two Car Garage, Garage Door Opener
Parking Notes: Attached, Garage, Two Car Garage, Garage Door Opener
Patio/Porch: Rear Porch, Patio
Pets Allowed: Owner Only, Yes
Security: Smoke Detector(s)
Utilities: Cable Available, Electricity Available, Phone Available, Sewer Available, Underground Utilities, Water Available
Water: Public

Local Schools

High School: Georgetown High School
Middle School: Georgetown Middle School
Elementary School: McDonald Elementary School

Listed By / Shown By

Listed By

Agency Name: The Beverly Group
Agency Phone: 843-349-0737

Shown By

Agent Name: Scott Mathews
Agent Phone: (843) 222-7082
Agency Title: CENTURY 21 Thomas

IDX logo

Estimate Your Payment

Estimated Payment

$ 778.34 per month $688.16 Principal & Interest $0.00 Property Tax (data not provided by mls) $90.18 Homeowner's Insurance

Change Payment Information

%
years/fixed
yearly
yearly (est.)
(Payments are an estimate and may vary by lender)
©2026 Thomas Real Estate, Incorporated. All rights reserved. CENTURY 21 ® and the CENTURY 21 Logo are registered service marks owned by Century 21 Real Estate LLC. Thomas Real Estate, Incorporated fully supports the principles of the Fair Housing Act and the Equal Opportunity Act. Each franchise is independently owned and operated. Any services or products provided by independently owned and operated franchisees are not provided by, affiliated with or related to Century 21 Real Estate LLC nor any of its affiliated companies. Disclaimer: All information deemed reliable but not guaranteed. All properties are subject to prior sale, change or withdrawal. Neither listing broker(s) or information provider(s) shall be responsible for any typographical errors, misinformation, misprints and shall be held totally harmless. Listing(s) information is provided for consumers personal, non-commercial use and may not be used for any purpose other than to identify prospective properties consumers may be interested in purchasing. Information on this site was last updated 04/28/2026. The listing information on this page last changed on 04/28/2026. The data relating to real estate for sale on this website comes in part from the Internet Data Exchange program of Delta Media Group MLS (last updated Tue 04/28/2026 8:02:27 PM EST) or CCAR MLS (last updated Tue 04/28/2026 7:56:54 PM EST) or HIVE MLS (last updated Tue 04/28/2026 7:59:56 PM EST). Real estate listings held by brokerage firms other than CENTURY 21 Thomas may be marked with the Internet Data Exchange logo and detailed information about those properties will include the name of the listing broker(s) when required by the MLS. All rights reserved.
Privacy Policy / DMCA Notice / ADA Accessibility

Login to My Homefinder

Pixel